不動産情報
- 網野
- 不動産
- 土地
- 建物
- 住宅
- 店舗
- 倉庫
- 別荘
- 売買
- 仲介
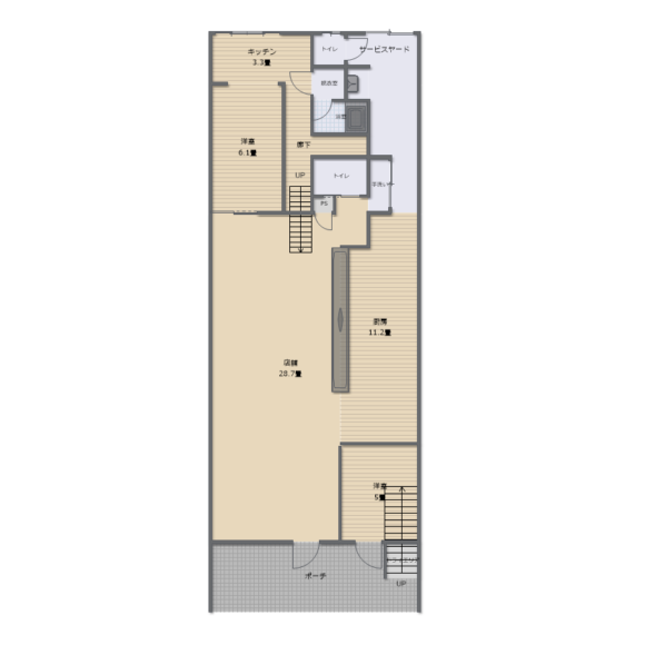
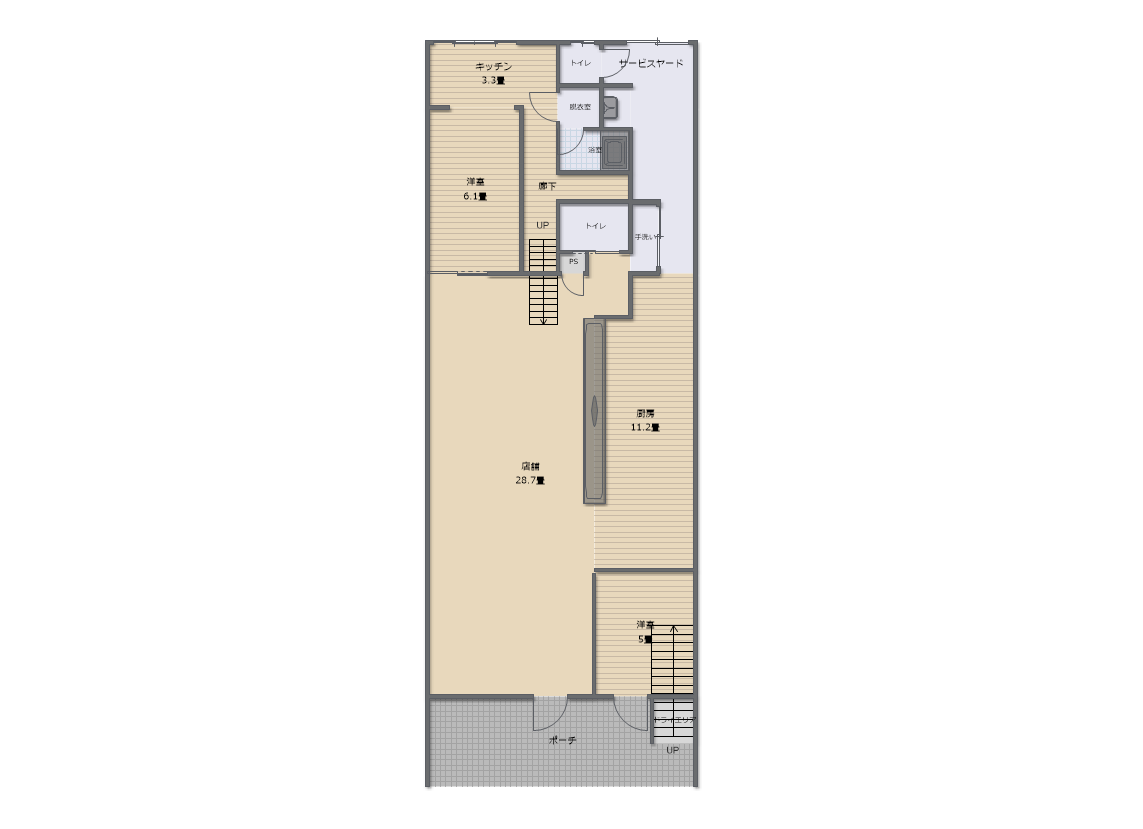
売店舗兼住居「2店舗営業できます。」網野町網野。
網野町網野の中古建物(店舗併用住宅)です。
【3つの特徴】
①店舗は1階と2階の2店舗飲食営業ができます。テナントで貸し出しても良さそうです。
②網野の中心地!目の前がスーパーです。
③2軒隣に3台分の駐車場があります。
見学は随時可能です。お気軽にお問い合わせください。
| 価格 |
1,415万円(税込み) |
| 所在地 | 京丹後市網野町網野867-1 |
| 土地面積 |
248.92㎡(75.29坪)公簿 |
| 建物面積 |
床面積351.76㎡(106.59坪)登記簿 |
| 交通 |
京都丹後鉄道 網野駅 徒歩23分 |
| 構造 |
鉄筋コンクリートブロック造陸屋根3階建て |
| 築年数 | 築58年 |
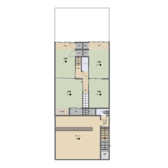
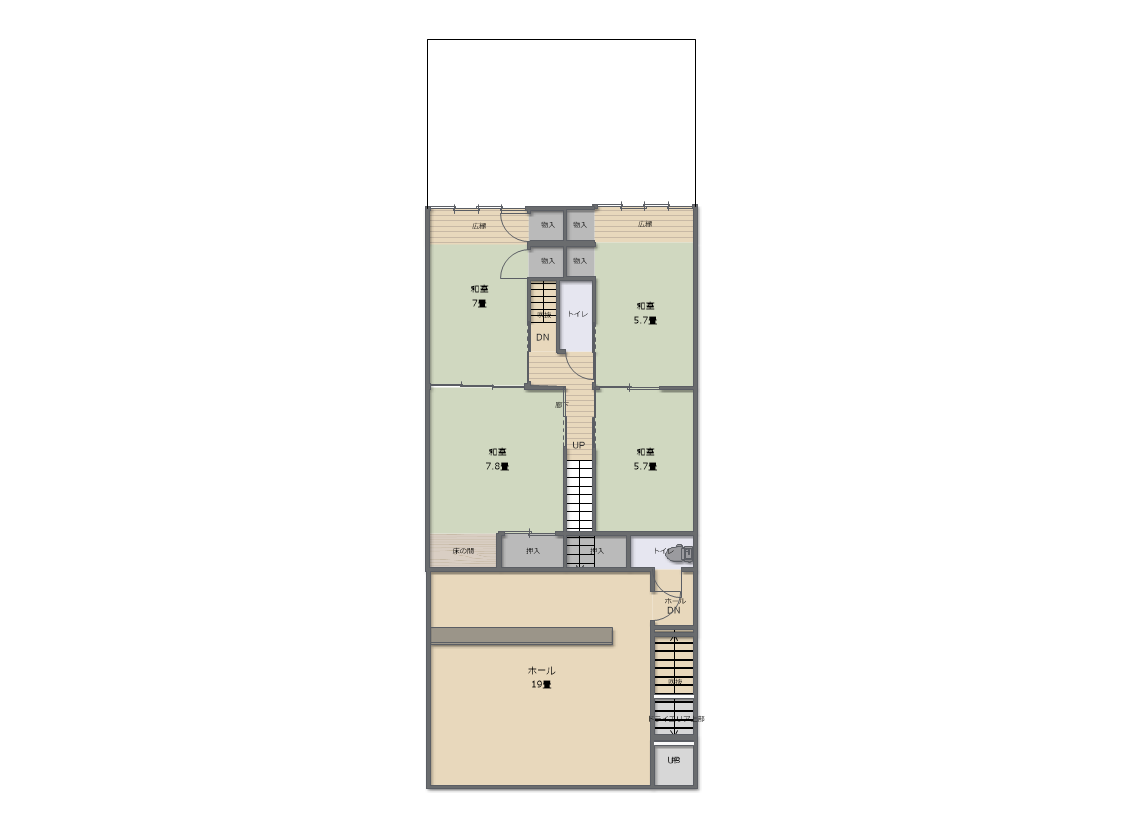
| 間取り | 12KK+2店舗 |
| 地目 | 宅地 |
| 都市計画 | 区域内 非線引き |
| 用途地域 | 指定なし |
| 建ぺい率 | 60% |
| 容積率 | 200% |
| 設備 | 電気・ガス・上水道・浄化槽 |
| 引渡時期 | ご相談 |
| その他 |
・家財等現状渡しとなります。 ・空き家改修補助金90万円対象地域です。
|
| 登録日 |
令和8年1月 |






